Продается 3 ком. квартира в новостройке: Тольятти, 18А, Офицерская
Коротко
- Номер объявления
- 32688871
- Дата подачи
- 30.09.2025
- Комнат
- 3
- Обновленно
- 14.11.2025
- Тип
- Новостройки
- Микрорайон
- 18А
- Комплекс
- ЖК Автограф
- Улица
- Офицерская
- Этаж
- 2
- Этажность
- 9
- Материал стен
- Монолит
- Планировка
- Улучшенная
- Балкон
- Балкон
- Площадь общая
- 80
- Площадь жилая
- 37
- Площадь кухни
- 22
- Состояние
- Предчистовая отделка
- Цена
- 9 663 000 руб.
- Просмотров
- 14
Контакты

ПРО.Недвижимость
- Агент:
- Прохорова Наталья
- Телефон:
- 89278911791
Остерегайтесь мошенников! Не вносите предоплату за услуги риелторов до личного посещения и осмотра объекта недвижимости!
Описание
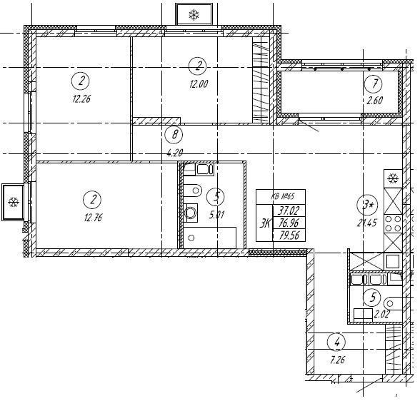
Продается 3-комн. квартира, Офицерская, 80/37/22 м2 за 9663000руб, Изолированная, Железная дверь, Евро окна, Пустая, Счетчики, ЖК <АВТОГРАФ> - 2-х подъездный монолитный дом комфорт - класса. Планировка квартиры - на 2 стороны света, кухней -гостиной, 3 спальнями, с выделенной зоной под гардеробную, лоджия с панорамным остеклением. Отделка квартиры - White box - стяжка пола, штукатурка стен, электро-разводка, установка розеток и выключателей, приборов отопления/учета. Благоустроенный двор и внутренние пространство. Всё выполнено в современном, сдержанном стиле. Безбарьерный доступ в подъезды на уровне земли. Ипотека под
Цена 9 663 000 руб. /120 788 за м2
Если вы позвонили по объявлению и выяснили, что объекта не существует, либо с вас требуют предоплату за просмотр, оставьте жалобу!
Дополнительно
Посмотреть все объявления (18): Продажа 3 комн. новостроек Автозаводской, Тольятти
3-комн. Новостройки, Автозаводской, Цена до 10 629 300, от 72 м2




Социальные кнопки