Справочный каталог

ЖК Весна

Лада-Дом
Самарская область, Тольятти, Автозаводской, 40 лет Победы
  • Этажность: 13-15
  • Расположение: Самарская область, Тольятти, Автозаводской, 40 лет Победы
  • Срок сдачи: Сдан
Жилой комплекс "Весна" - это не просто место для проживания, это образ жизни.
  • Квартиры с увеличенными кухнями;
  • Рядом развитые транспортные и социальные инфраструктуры;
  • Близость леса (5 минут ходьбы);
  • Современное европейское благоустройство территории;
  • Добрые и дружные соседи;
  • И много других преимуществ, о которых вы можете узнать в офисе продаж т. 77-99-77
 
Описание:
Месторасположение: микрорайон жилой квартал Лесной
Характеристика дома: 3-х подъездный дом переменной этажности
Высота потолков в квартирах 2,7 м
Отделка фасада – наружное декоративное покрытие и утеплитель.
Отделка квартир - подготовка под отделку (предчистовая).
Домофон предусмотрен.
Благоустройством предусмотрено озеленение территории; наличие детских и спортивных площадок; тротуары, подъездные дорог и парковки выложены брусчаткой.
 
Жилой дом поз. Л 1.1 с инженерно-техническим обеспечением в составе II этапа строительства комплекса зданий и сооружений жилищного и социального назначения.

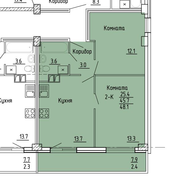
Планировки

Фотографии строительства

  • Октябрь 2016
  • Октябрь 2016
  • Ноябрь 2016
  • Ноябрь 2016
  • Ноябрь 2016
  • Декабрь 2016
  • Декабрь 2016
  • Декабрь 2016
  • Декабрь 2016
  • Январь 2017
  • Январь 2017
  • Январь 2017
  • Январь 2017
  • Июнь 2019
  • Июнь 2019
  • Июнь 2019
  • Июнь 2019

1 комнат(ы)

2 комнат(ы)

Фото Тип Адрес Этаж Площадь Цена
2-комн.
Квартиры
Тольятти, 40 лет Победы, 43
1/10
  • 47.3/30/10 м2
5 050 000
2-комн.
Квартиры
Тольятти, 40 лет Победы, 43Д
8/13
  • 48/17/16 м2
6 100 000

3 комнат(ы)

Фото Тип Адрес Этаж Площадь Цена
3-комн.
Квартиры
Тольятти, 40 лет Победы, 43Д
5/15
  • 54/26/3 м2
9 300 000

Реклама