Продается 3-к квартира Самара, Киевская улица 6к2
Коротко
- Номер объявления
- 32877564
- Дата подачи
- 29.12.2025
- Комнат
- 3
- Обновленно
- 11.02.2026
- Тип
- Квартиры
- Улица
- Киевская улица
- Номер дома
- 6к2
- Вариант
- продажа
- В ипотеку
- 1
- Этаж
- 19
- Этажность
- 26
- Материал стен
- Кирпич
- Балкон
- Лоджия
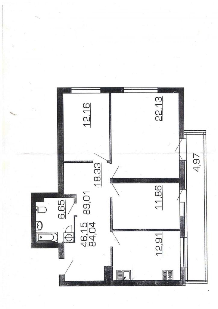
- Площадь общая
- 89.1
- Площадь жилая
- 46.1
- Площадь кухни
- 12.9
- Год постройки
- 2024
- Цена
- 12 550 000 руб.
- Просмотров
- 17
Контакты

ГК Визит
- Агент:
- Курбангулова Гузель
- Телефон:
- +79379893232
Остерегайтесь мошенников! Не вносите предоплату за услуги риелторов до личного посещения и осмотра объекта недвижимости!
Описание
Добавочный номер специалиста 303
Трёхкомнатная видовая квартира в ЖК КОРОЛЁВ панорама города и комфорт бизнес-класса!
Продаётся просторная трёхкомнатная квартира с черновой отделкой в современном жилом комплексе ЖК КOРОЛЕВ.
Ленинский район, 19/26 этаж, вид на город и закаты, окна на две стороны, ДОМ НА ТРЕТЬЕЙ ЛИНИИ от Московского шоссе!
Основные характеристики:
Общая площадь: просторная и светлая планировка
Комнаты раздельные, правильной формы
Большая лоджия на всю длину квартиры, выход из кухни и комнаты
Черновая отделка идеальное решение, чтобы сделать ремонт под себя!
О доме:
Современный комплекс с подземным паркингом,
3 скоростных лифта,
Консьерж, видеонаблюдение,
Подъём в квартиру прямо из паркинга на лифте!
Собственная крышная котельная всегда тепло и экономно!
Подключены все провайдеры: интернет, ТВ, телефон.
На 1 этаже пункты выдачи Ozon и Wildberries, удобно и современно!
Локация:
Дом расположен во дворе, вдали от шума дорог, но при этом в центре инфраструктуры:
Рядом магазины, ТЦ Вертикаль, рынок Караван
Школы, детские сады, медучреждения всё в шаговой доступности
До метро Московская несколько минут пешком!
Удобные выезды на Московское шоссе, Киевскую, Гагарина, Тухачевского.
До набережной и центра города 5 минут на машине!
ЖК КОРОЛЁВ это современный, безопасный и продуманный комплекс для комфортной жизни.
Закрытая дворовая территория с детской площадкой, парковкой и озеленением.
Звоните прямо сейчас!
Покажем квартиру в удобное время, поможем с ипотекой и сделкой!
Ваш новый уровень комфорта в ЖК КОРОЛЁВ.
Ответственность агентства при осуществлении профессиональной деятельности риэлтора застрахована ОА АльфаСтрахование.Номер объекта: 5/538678/20380
Цена 12 550 000 руб. /140 853 за м2
Если вы позвонили по объявлению и выяснили, что объекта не существует, либо с вас требуют предоплату за просмотр, оставьте жалобу!
Дополнительно
Посмотреть все объявления (40): Продажа 3 комн. квартир Ленинский, Самара
3-комн. Квартиры, Ленинский, Цена до 13 805 000, от 80 м2




Социальные кнопки