Продается 2-к квартира Самара, улица Строителей 11
Коротко
- Номер объявления
- 31957754
- Дата подачи
- 16.01.2025
- Комнат
- 2
- Обновленно
- 14.11.2025
- Тип
- Квартиры
- Улица
- улица Строителей
- Номер дома
- 11
- Вариант
- продажа
- В ипотеку
- 1
- Этаж
- 4
- Этажность
- 5
- Материал стен
- Кирпич
- Планировка
- Улучшенная
- Балкон
- 2 лоджии
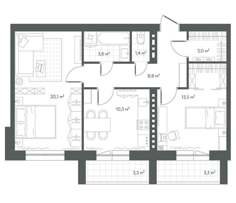
- Площадь общая
- 67.3
- Площадь жилая
- 33.8
- Площадь кухни
- 10.48
- Сан. узел
- Раздельный
- Год постройки
- 2024
- Состояние
- Требует ремонта
- Цена
- 5 047 500 руб.
- Просмотров
- 107
Контакты

Агентство недвижимости Византия
- Агент:
- отдел продаж
- Телефон:
- 88002228120
Остерегайтесь мошенников! Не вносите предоплату за услуги риелторов до личного посещения и осмотра объекта недвижимости!
Описание
Продаётся 2 комнатная квартира в ЖК Земляничный (пгт Петра-Дубрава, ул. Строителей д.11) .
ДОМ СДАН, разрешение на ввод 63-17-118-2024 от 27.12.2024 г.
СЕМЕЙНАЯ ИПОТЕКА ПОД 6%. СЕРТИФИКАТ МОЛОДАЯ СЕМЬЯ-ДА
Индивидуальное газовое отопление-значительная экономия на коммунальных платежах.
Черновая отделка.
Комнаты изолированные, комфортная планировка: кухня расположена между комнатами, площадь комнат 20,35 и 13,45 кв.м., кухня квадратная 10,48 кв.м., сан узел раздельный, есть гардеробная 2,9 кв.м,, две лоджии: из кухни и из спальной комнаты.
Установлена противопожарная входная дверь.
Просторные лестничные пролеты, три квартиры на площадке.
Дома располагаются в спокойном месте.
Парковочные места по периметру дома.
Своя управляющая компания.
В шаговой доступности школа, дет.сады, магазины всех федеральных сетей, остановка общественного транспорта.
Активно строится магистраль Центральная ( срок ввода 4 кв-л 2025 г.).
После завершения строительства 5 минут до Ракитовского шоссе.
Продажа по договору купли-продажи, «первая» цена без накруток и доп комиссий.
Возможна ипотека на вторичку, РАССРОЧКА!!!.
Поможем с реализацией Вашего жилья
Цена 5 047 500 руб. /75 000 за м2
Если вы позвонили по объявлению и выяснили, что объекта не существует, либо с вас требуют предоплату за просмотр, оставьте жалобу!
Дополнительно
2-комн. Квартиры, Самара, Цена до 5 552 250, от 61 м2




Социальные кнопки