Продается коттедж/дом: Самара, Кустарная улица 55Вк1
Коротко
- Номер объявления
- 32574223
- Дата подачи
- 19.08.2025
- Обновленно
- 10.11.2025
- Улица
- Кустарная улица
- Номер дома
- 55Вк1
- В ипотеку
- 1
- Этажность
- 2
- Материал стен
- Керамзитобетон
- Площадь общая
- 158.2
- Площадь кухни
- 45
- Площадь земли
- 10
- Цена
- 8 500 000 руб.
- Просмотров
- 56
Контакты

ООО АН Рио Гранд
- Агент:
- Елена
- Телефон:
- +79171060049
Остерегайтесь мошенников! Не вносите предоплату за услуги риелторов до личного посещения и осмотра объекта недвижимости!
Описание
Продается ДВУХЭТАЖНЫЙ КОТТЕДЖ в 10 мин. от города Самара!
Общей площадью 158.2 кв.м., имеет 2-А ПОЛНОЦЕННЫХ ЭТАЖА. Дом 2022 года постройки. В дом заведены: свет, газ, вода с колодца на 10 колец, сделана сливная яма.
СТРОИЛИ ДЛЯ СЕБЯ! Очень ПРОДУМАННАЯ ПЛАНИРОВКА, имеющая все необходимое для комфортной жизни: 2-а входа на разные стороны, 2 с/у расположены на каждом этаже, большая гардеробная.
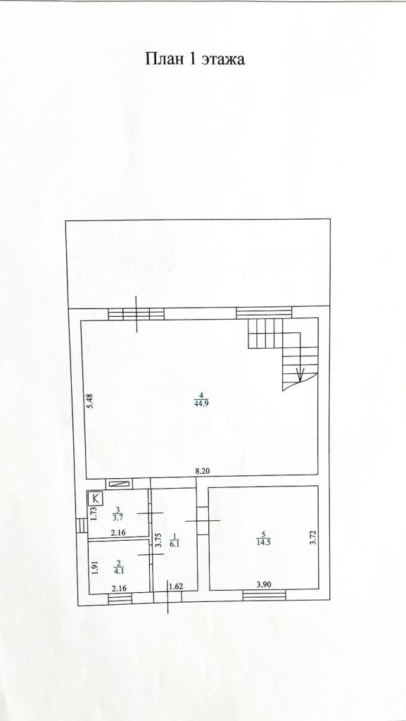
- 1 этаж: большая кухня-гостинная 45 кв.м., с/у с котельной зоной, спальня 14.5 кв.м.
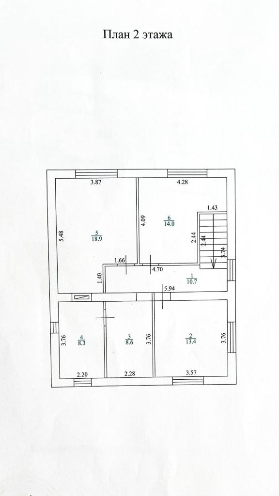
- 2 этаж: 3 изолированные спальни 13.4/14/19 кв.м., вместительная гардеробная, с/у.
Частичная предчистовая отделка: Окна ПВХ, разводка электроэнергии и штукатурка на 1 этаже, двухконтурный подвесной котел.
ШИРОКИЙ участок РОВНОЙ прямоугольной формы 1000 кв.м. На участке расположен железный перевозной гараж.
Асфальтовая дорога вдоль участка. Соседи все хорошие, дружные, на улице в основном коттеджи. Дом расположен центре села. Остановка общественного транспорта за домом в 3 мин.ходьбы.
Хорошее расположение села: ЭКОЛОГИЧЕСКИ ЧИСТОЕ место вблизи города (10 мин. от пл. Кирова). В селе имеется магазин Пятерочка, большая школа и дет.сад, современная дет.площадка. Множество небольших магазинов и услуг.
ПОЛНАЯ ЦЕНА в договоре. Документы имеются на все. Участок размежеван. Ипотека, сертификаты - ДА. ЗВОНИТЕ!
Цена 8 500 000 руб. /53 729 за м2
Если вы позвонили по объявлению и выяснили, что объекта не существует, либо с вас требуют предоплату за просмотр, оставьте жалобу!
Дополнительно
- Газ
- Вода
- Электричество
Дома/Коттеджи, Самара, Цена до 9 350 000, от 142 м2




Социальные кнопки