Продается 3-к квартира Тольятти, 9, Ст. Разина пр-т 27
Коротко
- Номер объявления
- 31681466
- Дата подачи
- 28.10.2024
- Комнат
- 3
- Обновленно
- 08.12.2025
- Тип
- Квартиры
- Микрорайон
- 9
- Улица
- Ст. Разина пр-т
- Номер дома
- 27
- Вариант
- продажа
- Этаж
- 4
- Этажность
- 5
- Материал стен
- Панель
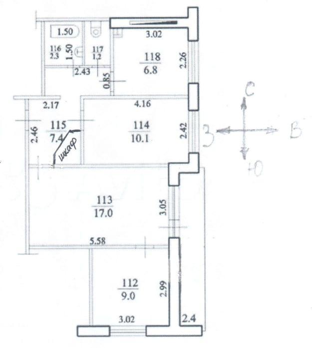
- Планировка
- Ст. Московская
- Балкон
- Лоджия
- Площадь общая
- 56
- Площадь жилая
- 39
- Площадь кухни
- 7
- Сан. узел
- Раздельный
- Состояние
- Отличное
- Цена
- 4 750 000 руб.
- Просмотров
- 133
Пожалуйста, сообщите владельцу объявления, что вы нашли его на RADVER.RU.
Контакты
Остерегайтесь мошенников! Не вносите предоплату за услуги риелторов до личного посещения и осмотра объекта недвижимости!
Описание
Продается 3-комн. квартира, Ст. Разина пр-т 27, 56/39/7 м2 за 4750000руб, Документы готовы, Железная дверь, Встроенная кухня, Евро окна, Кондиционер, Счетчики, Шкаф-купе, обмен подобран
Цена 4 750 000 руб. /84 821 за м2
Если вы позвонили по объявлению и выяснили, что объекта не существует, либо с вас требуют предоплату за просмотр, оставьте жалобу!
Дополнительно
- Мебель на кухне
- Кондиционер
Посмотреть все объявления (538): Продажа 3 комн. квартир Автозаводской, Тольятти
3-комн. Квартиры, Автозаводской, Цена до 5 225 000, от 50 м2





Социальные кнопки