Продается 3 ком. квартира в новостройке: Самара, Советской Армии улица
Коротко
- Номер объявления
- 31236373
- Дата подачи
- 16.02.2026
- Комнат
- 3
- Обновленно
- 07.03.2026
- Тип
- Новостройки
- Комплекс
- ЖК Космолет
- Улица
- Советской Армии улица
- Этаж
- 10
- Этажность
- 33
- Материал стен
- Монолит
- Балкон
- 3Л
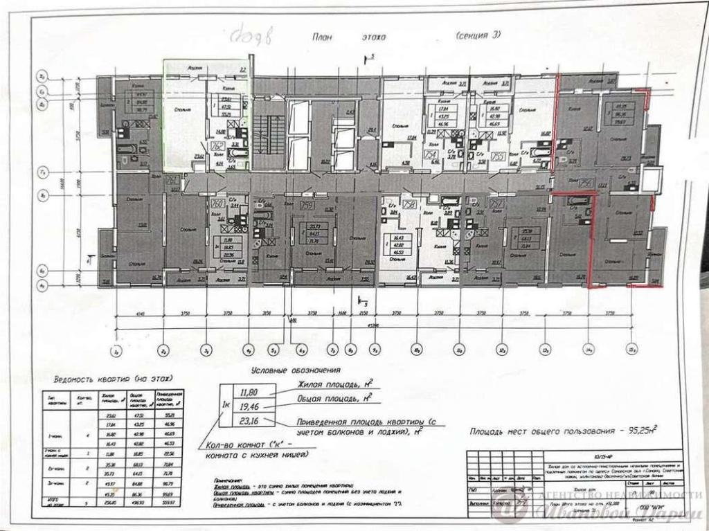
- Площадь общая
- 99.85
- Площадь жилая
- 49.35
- Площадь кухни
- 12.12
- Сан. узел
- 2
- Срок сдачи
- 2025
- Цена
- 7 800 000 руб.
- Просмотров
- 9
Контакты
Остерегайтесь мошенников! Не вносите предоплату за услуги риелторов до личного посещения и осмотра объекта недвижимости!
Описание
Продаётся трёхкомнатная квартира в Самаре, в престижном Советском районе, на улице Советской Армии. Жилой комплекс «Космолёт» представляет собой современное монолитно-блочное здание, состоящее из 33 этажей. 3 секция. Дом построен, идут фасадные работы. В квартире есть три изолированные комнаты площади: 12.53 кв.м.,16.09 кв.м. и 20.73 кв.м. , что делает её идеальным выбором для большой семьи или тех, кто ценит личное пространство. В планировку входит совмещённый санузел с двумя умывальниками и изолированная лоджия, выходящая на угловую квартиру. Из окон открывается красивый вид на Антонова-Овсеенко, который будет радовать вас долгие годы. Состояние квартиры черновая отделка, что даёт возможность новым владельцам реализовать свои дизайнерские идеи и создать уникальный интерьер. В доме установлены современные стеклопакеты, а лоджии полностью застеклены. Для удобства жильцов предусмотрены пассажирский и грузовой лифты, а также консьерж-сервис. На территории жилого комплекса расположены детская и спортивная площадки, где ваши дети смогут весело и безопасно проводить время. Под домом находится подземная парковка, которая обеспечит безопасность вашего автомобиля и освободит пространство во дворе. Срок сдачи новостройки 4 квартал 2025 года. Это выгодное предложение для тех, кто ценит комфорт, качество и удобное расположение. Не упустите возможность стать владельцем квартиры в одном из самых перспективных жилых комплексов Самары!
Цена 7 800 000 руб. /78 117 за м2
Если вы позвонили по объявлению и выяснили, что объекта не существует, либо с вас требуют предоплату за просмотр, оставьте жалобу!
Дополнительно
Посмотреть все объявления (21): Продажа 3 комн. новостроек Октябрьский, Самара
3-комн. Новостройки, Октябрьский, Цена до 8 580 000, от 90 м2





Социальные кнопки