Продается 2-к квартира Самара, Мечникова улица 5
Коротко
- Номер объявления
- 31313852
- Дата подачи
- 17.02.2026
- Комнат
- 2
- Обновленно
- 10.04.2026
- Тип
- Квартиры
- Улица
- Мечникова улица
- Номер дома
- 5
- Вариант
- продажа
- В ипотеку
- 1
- Этаж
- 1
- Этажность
- 19
- Материал стен
- кирпично-монолитный
- Площадь общая
- 76.4
- Площадь жилая
- 30.7
- Площадь кухни
- 26.6
- Сан. узел
- 2
- Год постройки
- 2017
- Цена
- 8 400 000 руб.
- Просмотров
- 27
Контакты
Остерегайтесь мошенников! Не вносите предоплату за услуги риелторов до личного посещения и осмотра объекта недвижимости!
Описание
ЖК « На Мечникова»
Дом 2016 года постройки.
Квартира для тех, кто хочет жить обособленно, с отдельным входом, парковкой под окном, но с удобством проживания в многоквартирном доме.
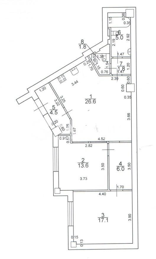
Высокие потолки 4 метра позволят вам дизайн, невозможный в обычных квартирах, например, двухъярусную детскую или спальню. Отличная планировка. Большая кухня-гостиная 27 метров. 2 изолированные комнаты 17 и 14 метров. 2 санузла. Есть дизайн-проект, предусмотрено много мест для хранения.
Под квартирой полноценный технический этаж высотой 4м.
Черновая отделка, выставлены перегородки.
Документы готовы, назначение жилое.
Один взрослый собственник. Ипотека подходит. Чистая продажа.
Хорошее местоположение: рядом ТРК Гудок, Крымская площадь, парк Щорса.
Звоните, мы покажем Вам квартиру в удобное время.
Общая площадь: 76,4 кв.м. Кухня-гостиная 26,6 кв.м. Комнаты: 17,1 + 13,6 кв.м. Два санузла 5,0 + 1,8 кв.м.
Цена 8 400 000 руб. /109 948 за м2
Если вы позвонили по объявлению и выяснили, что объекта не существует, либо с вас требуют предоплату за просмотр, оставьте жалобу!
Дополнительно
Посмотреть все объявления (17): Продажа 2 комн. квартир Железнодорожный, Самара
2-комн. Квартиры, Железнодорожный, Цена до 9 240 000, от 69 м2





Социальные кнопки