Продается коттедж/дом: Самара, Московское шоссе 19-й километр 323
Коротко
- Номер объявления
- 31782227
- Дата подачи
- 10.11.2024
- Обновленно
- 09.12.2025
- Улица
- Московское шоссе 19-й километр
- Номер дома
- 323
- Этажность
- 2
- Материал стен
- Керамзитобетон
- Площадь общая
- 160
- Площадь кухни
- 10
- Площадь земли
- 5.5
- Цена
- 8 200 000 руб.
- Просмотров
- 140
Контакты

Агентство недвижимости Византия
- Агент:
- Арсентьев Александр Владимирович
- Телефон:
- 89272034922
Остерегайтесь мошенников! Не вносите предоплату за услуги риелторов до личного посещения и осмотра объекта недвижимости!
Описание
Красноглинский район. 19 км М Шоссе. СНТ "Прогресс".
Продается отличный дом в черте города.
Дом построен из керамзитных блоков (400мм) + утепление 100 мм базальтовой ватой + короед с покраской.
1 этаж: кухня 9,4 м;гостиная 19,2 м;котельная 3,6м; с/у 6 м;жилая комната 14,1м; терасса 5,8м.
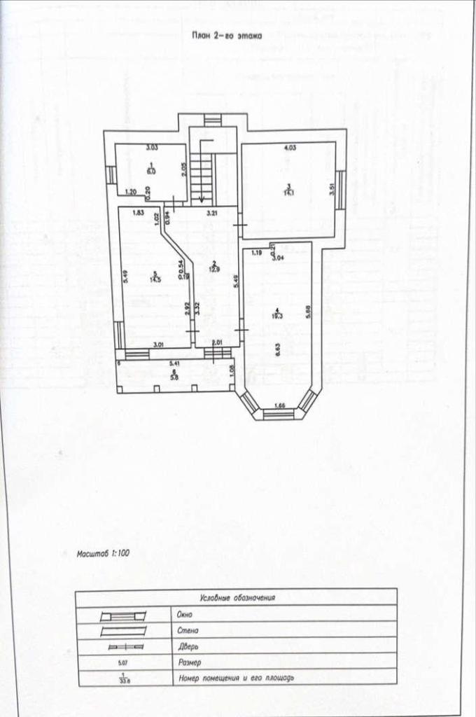
2 этаж: 3 жилых комнаты 14,5+14,1+19,3 м.; с/у 6 м. балкон 5,8м.
Фундамент ленточный + обратная засыпка + стяжка.
перекрытие между 1 и 2 этажом жб плиты. перекрытие 2 го этажа деревянное 200 мм с утеплением.
Кровля холодная,металлочерепица Монтерей цвет графит.
вода : индивидуальная скважина заведена в дом
канализация : выгребная яма заведена в дом
Электричество 220В заведено в дом.
Газ - есть на улице,подключение без проблем
Участок правильной прямоугольной формы 5,5 соток.
Более подробная информация по телефону.
Звоните договаривайтесь о просмотре Заранее пожалуйста!!!.
Цена 8 200 000 руб. /51 250 за м2
Если вы позвонили по объявлению и выяснили, что объекта не существует, либо с вас требуют предоплату за просмотр, оставьте жалобу!
Дополнительно
- Электричество
Дома/Коттеджи, Красноглинский, Цена до 9 020 000, от 144 м2




Социальные кнопки